

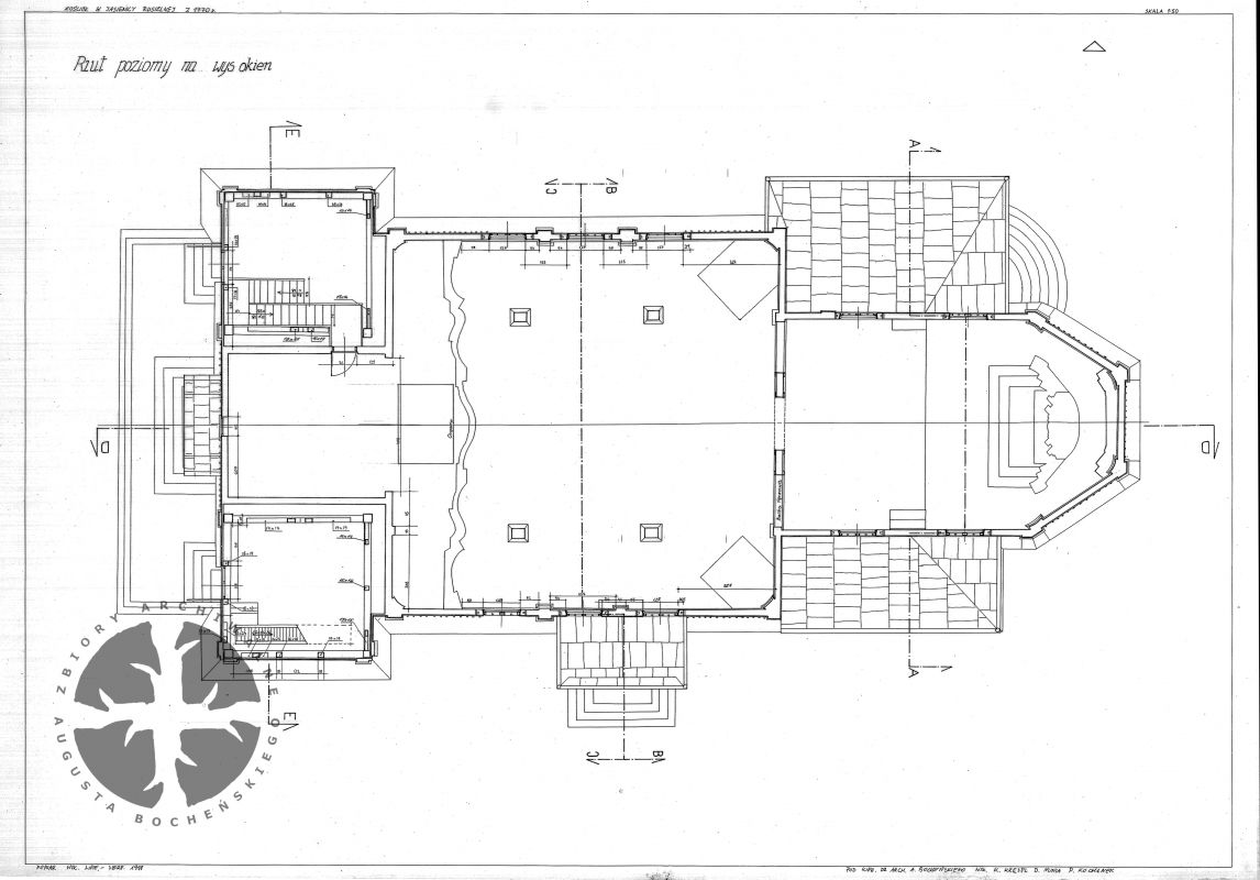
Opis załączonej inwentaryzacji rysunkowo-pomiarowej, sygnatury AAB_003_002_01_Ec - AAB_003_002_13_Ec. Inwentaryzacja, 13 arkuszy, rysunek tuszem na kalce technicznej: plan sytuacyjny – 1 :500; rzut przyziemia, rzut na wysokości okien, rzut więźby, 5 przekroi, 3 elewacje – 1:50; detale – 1:5. Wykonał A. Bocheński i K. Krężel, współpraca przy pomiarze: D. Munia, P. Kochanek, całość wykonana pod kierownictwem A. Bocheńskiego, pomiar: lipiec-sierpień, rysunki: sierpień-wrzesień 1998.
wróć do katalogu